Wropo logo
بيشپه بيرغ کروشیا کروشیا
یو اعلان پوسټ کړئ
  1. کور
  2. ريښتینی دولت
  3. کورونه
مهرباني وکړئ خبر اوسئ چې په خبر اوسئ نور وګوره

موږ د خپلو کاروونکو مستقیم پوهه نلرو، او نه هم موږ د دوی فعالیتونه کنټرول کوو. خلکو ته د پیسو لیږلو څخه مخنیوی وکړئ کله چې نه پوهیږئ. تل د آنلاین لیږدونو کې احتیاط وکړئ او د پرمخ تللو دمخه معلومات تایید کړئ. لږ وګوره

House for sale in Samobor, Zagreb County

412,000€

کورونه, Samobor, IMG-0
کورونه, Samobor, IMG-1
کورونه, Samobor, IMG-2
کورونه, Samobor, IMG-3
کورونه, Samobor, IMG-4
کورونه, Samobor, IMG-5
کورونه, Samobor, IMG-6
کورونه, Samobor, IMG-7
کورونه, Samobor, IMG-8
ژباړه: بيرغ PS اصلي

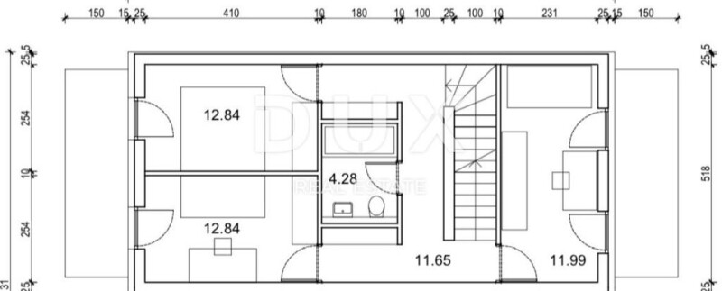
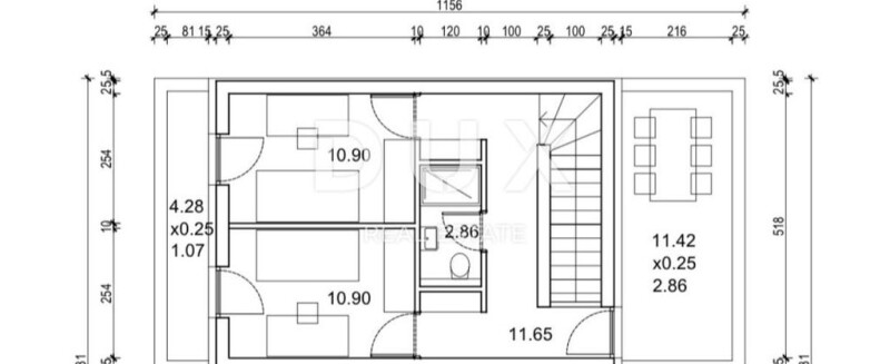
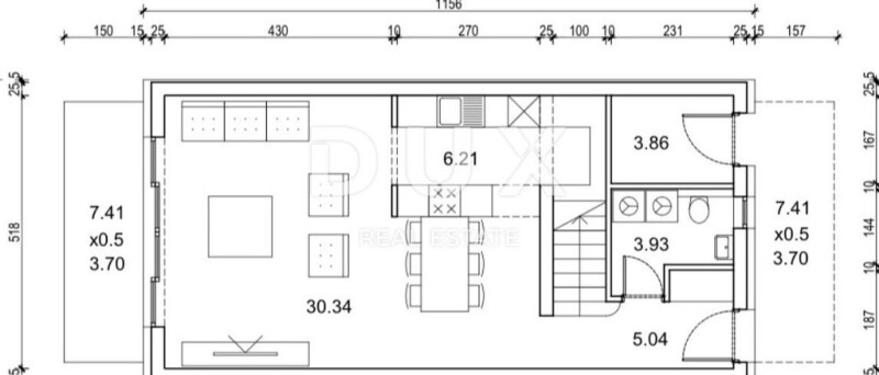
SAMOBOR, CENTER - modern terraced houses in a sought-after location! This spacious house with a total area of 169.81 m² (150.64 m² with coefficient) extends over three floors: ground floor, first floor and mezzanine. Construction is planned for this summer, with expected completion by the end of next year. The ground floor has a living room with kitchen and dining room, toilet, hallway, storage room and two covered terraces. The first floor consists of three bedrooms, a bathroom and a hallway. On the top mezzanine floor there are two bedrooms, a bathroom, a hallway and two terraces. GROUND FLOOR Living room/dining room: 30.34 m² Kitchen: 6.21 m² Toilet: 3.93 m² Hallway: 5.04 m² Storage room: 3.86 m² Covered terrace: 7.41 m² (coefficient 0.5 = 3.71 m²) Covered terrace: 7.41 m² (coefficient 0.5 = 3.71 m²) 1ST FLOOR Bedroom: 12.84 m² Bedroom: 12.84 m² Bedroom: 11.99 m² Bathroom: 4.28 m² Hallway: 11.65 m² DRAWN UPPER FLOOR Bedroom: 10.90 m² Bedroom: 10.90 m² Bathroom: 2.86 m² Hallway: 11.65 m² Terrace: 11.42 m² (coefficient 0.25 = 2.86 m²) Terrace: 4.28 m² (coefficient 0.25 = 1.07 m²) Total: 169.81 m² (with coefficient = 150.64 m²) The house is located in an exceptional location, just a few minutes drive from the center of Samobor, in a quiet environment, but with excellent connections to all important amenities. There are also two parking spaces next to the house, making this property practical for a family. For additional comfort, each room will be equipped with air conditioning, and the house will have a heat pump system, which allows for high energy efficiency and a comfortable stay throughout the year. This house is the perfect choice for a family looking for a modern, energy-efficient and comfortable home near the center of Samobor. Dear clients, the agency commission is charged in accordance with the General Terms and Conditions: DUX Rijeka E- www.dux-nekretnine.hr SAMOBOR, CENTER - modern terraced houses in a sought-after location!.

Additional Property Information:
• Rooms: 6
• Bedrooms: 5
• Bathrooms: 2
• Size: 170 m²
• Cooling Systems: Air Conditioning
• Exterior Amenities: Sports Court
• Floor Count: 2
• Reference: 38160
• Year of construction: 2025

بيه: 412,000€
Whatsapp: نه
کټګورۍ: کورونه
ډول: مسلکي
ښار: Samobor
سیمه: Zagrebačka
حواله: HR-64630785F6
وروستی اوسمهال: 5 مياشتي دمخه
لیدنه: 166
Avatar Bg

اوس زنګ ووهئ ترڅو د پلورونکي سره مستقیم وصل کړئ.

نور اعلانونه
3 room  Townhouse for sale in Samobor, Zagreb County

9

3 room Townhouse for sale in Samobor, Zagreb County

899,000€

Samobor

ريښتینی دولت » کورونه

مسلکي

5 مياشتي دمخه

5 bedroom  House for sale in Samobor, Croatia

9

5 bedroom House for sale in Samobor, Croatia

412,000€

Samobor

ريښتینی دولت » کورونه

مسلکي

5 مياشتي دمخه


Wropo logo
  • ښارونه
  • سیمې
  • هیوادونه
  • د محرمیت تګلاره
  • شرایط او شرایط
  • F.A.Q.
  • بيه
  • تماس

Wropo د اعلانونو د خپرولو یو پلاتفورم دی. موږ د درېیم‌ګړی اعلان‌ورکوونکو له خوا ثبت شوي هیڅ محصول یا خدمت ملکیت نه لرو، نه یې اداره کوو، او نه یې تضمین کوو.

© 2025 Wropo. ټول حقونه خوندي دي.

کټګورۍ غوره کړئ